Тел.:
Заказать звонок

Окна REHAU GRAZIO | Грацио

Окна ГРАЦИО новая система от REHAU ставшая стандартом остекления для квартиры и доступного энергоэффективного окна для коттеджа. 

Тепло
5 камер,70 мм
Много света
Пакет профилей 111 мм
Цена
от 4000 руб/м2
Комфорт по доступной цене

Окна GRAZIO

Самое доступное окно REHAU, отвечающее современным требованиям Москвы по тепло и звукоизоляции для остекления квартир, загородных домов, офисов и др. отапливаемых помещений. За счет эффективной сбалансированной комплектации и прямых цен от завода окна GRAZIO|Грацио стали стандартом качественного и доступного всем окна в России.

Преимущества системы ГРАЦИО:

  • Энергосбережение
  • Общая эффективность 
  • Обновленный дизайн и больше света
  • Оптимальная комплектация и цена
  • Дизайнерскя оконная ручка REHAU CAMEA

Цена окна: 6 500 pуб./м²

Под ключ: 10 100 pуб./м²

Окно пластика Рехау Грацио

Технические характеристики окна GRAZIO

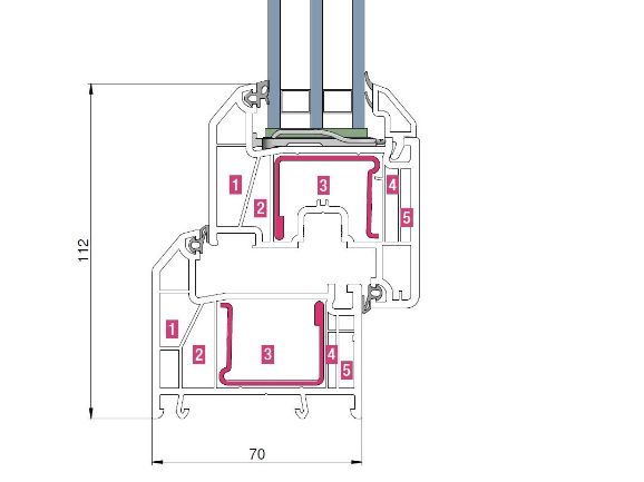
Строение профиля.

Ширина 70 мм, 5 камер.

На 15% шире и теплее стандартного окна (Rопр.=0,85 м2 °C/Вт)., а так же более широкий стеклопакет и более теплый монтажный шов.

Эффективный уплотнитель. 2 контура REHAU RAUTUBE.

Делает притвор окна герметичным и эффективно защищает от продувания. Уплотнение протянуто непрерывно по всему контуру. 

Стеклопакет.

Ширина до 41 мм, 3 стекла.

Широкий стеклопакет 40 мм 3 стекла, вместо обычного 32 мм. Стекла с теплоотражающим покрытием.

Работоспособность окна.

А-класс по ГОСТ.

Широкий стеклопакет 40 мм 3 стекла, вместо обычного 32 мм. Стекла с теплоотражающим покрытием.

Качественный пластик.

Более 60 лет эксплуатации. 

Качественная и более дорогая  рецептура профиля, строгое  соблюдение технологии и современное оборудование обеспечивают профилю прочную сшивку стенок, плотную глянцевую поверхность и безопасность.

Европейская фурнитура. 

ROTO или Siegenia

Для надежной и комфортной работы створки окна устанавливается только лучшая фурнитурная обвязка от проверенных мировых марок ROTO, Maco, Siegenia  

Высота пакета профилей. 112 мм - больше света.

За счет нового строения профиля система GRAZIO получила практически те же характеристики по светопропусканию как в более премиальном окне REHAU DELIGHT.

Усиленное армирование.

Ix=2,5 см4 

По умолчанию коробка, створка и импост армируются усиленным стальным оцинкованным профилем с толщиной стенки не менее 1,5 мм и дополнены ребрами жесткости.

Правильное проектирование

Размеры и возможности

  • Ширина белого блока до 4,0 м.
  • Ширина цветного бока до 3,0 м.
  • Ширина створки до 1300 мм
  • Высота створки до 2300 мм
  • Окно с импостом и безимпостное
  • Форма: прямые, арочные, трапеции

Окно пластика Рехау Грацио профиль

Варианты штапиков и уплотнений

Создайте дизайн своему окну сами - выберите форму штапика и цвет уплотнения.

Варианты цвета

Вы можете оставить окно белым или заказать его в цветном исполнении с одной или двух сторон ламинацией немецкими пленками RENOLIT. Для соблюдения общего цветового решения фасада возможна окраска профиля специальными красками в любой цвет по RAL. 

Варианты оконных ручек

Устанавливаем оригинальные ручки REHAU и других производителей. Цвет ручек белый, коричневый, серебро, бронза, золото, антрацит. Варианты ручек с ключом, с детским блокиратором, с механизмом SEQUSTIK.  

Вопросы и ответы 

Цены на окна Грацио в Москве

Для расчета стоимости позвоните нам или оставьте заявку на звонок специалиста. Обращаем ваше внимание, что при изготовлении нами конструкций применяется только оригинальные профили REHAU, уплотнения, ручки, усиленное армирование, монтаж производится квалифицированными специалистами, соблюдается технология монтажа и применяются качественные утеплители. Цена полностью оправдана качеством и вашим комфортом.  Цены...

Мы поможем если вы ищете:
Окна грацио, окна grazio, окна грация, стеклопакеты грацио, okna grazio, двери Грацио, остекление Грацио, цены Грацио, купить Грацио, заказать Грацио